The Duplexes at Barretts Hill
3 Barretts Hill Rd, Hudson NH
Coming Soon!
Lovely location in the town of Hudson, NH. Close to the intersection of Greeley Street. This location abuts a large conservation preserve. Beautiful country setting in Hudson NH just off Route 111and close to Route 93. A perfect commuter’s location.
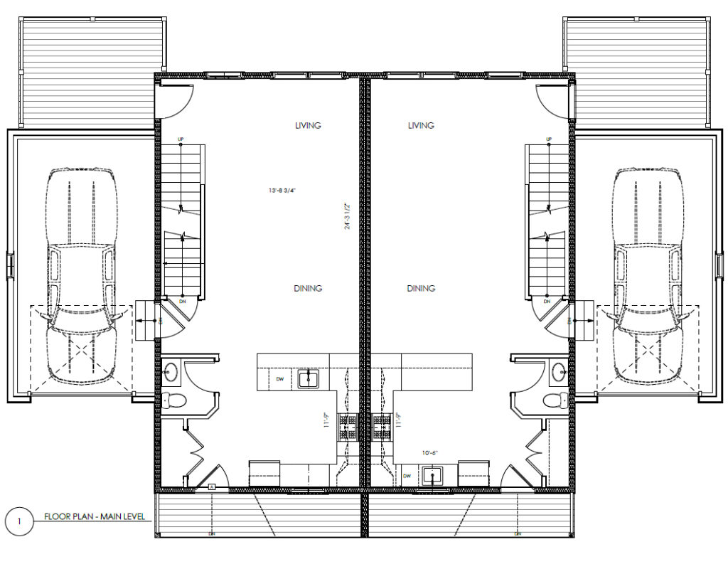
Seven Condexes will be built on this site. Each will include 3 bedrooms and 2.5 baths, with a 1 car garage. Features will include: well and septic, second floor washer/dryer hook-up location. Individual driveways.





