Beote Construction’s Latest Project in Merrimack, New Hampshire is at Seaverns Bridge Road. This quiet setting will consist of 4 single family homes with garages, decks and porches. Lot sizes range from just over 2 acres to over 4 acres in size. Homeowners here will enjoy a location that has wonderful public schools and services. Proximity to Amherst, Nashua and Manchester make this an ideal location.
Addresses: 101-1, 102-2, 103 and 105
Seaverns Bridge Rd
Merrimack NH
4 Single Family Homes to be Constructed in this quiet setting just off County Rd and Amherst Rd in Merrimack NH. Customize your home with cabinetry, counters and flooring of your choice. Every details reflects uncompromising quality and attention to detail.
Details about each address:
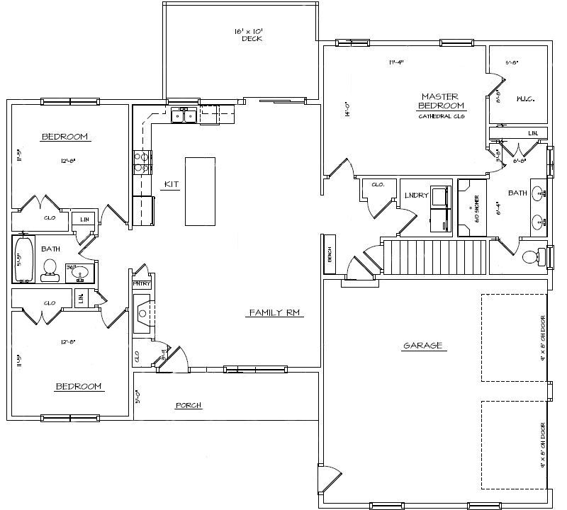
105 Seaverns Bridge Rd: 4 bedroom Colonial Style Home with 2.5 Baths and 2640 sqft of living space. Construction to include a 2 car attached garage, front porch and rear deck. Property will feature a septic system and well and a shared common driveway. Lot is 4.093 acres in size.
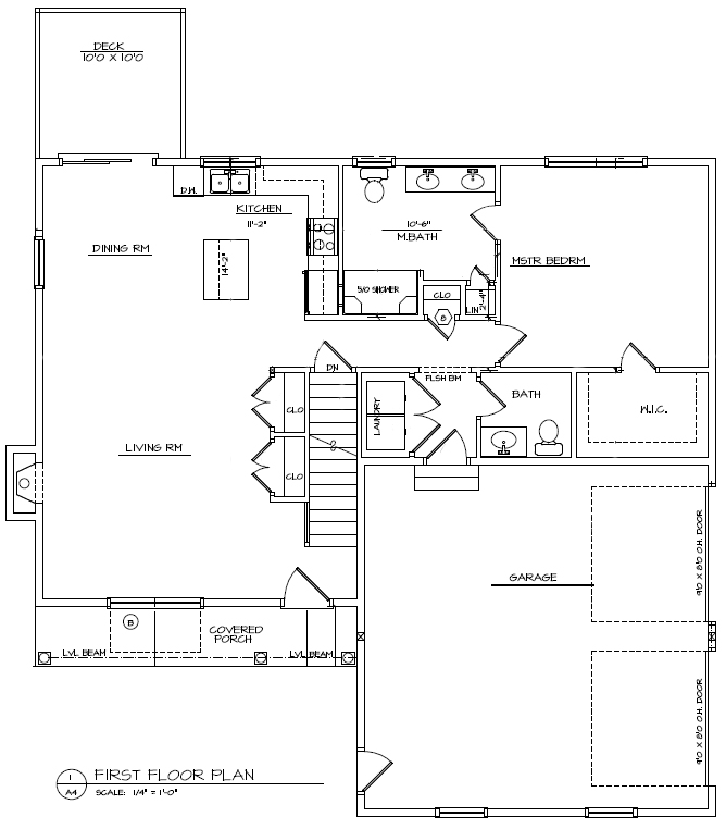
103 Seaverns Bridge Rd: 3 bedroom ranch with 2 full baths and 1550sqft of living space. Construction will include an attached 2 car garage, front porch and rear deck. Property will feature a septic system and well and a shared common driveway. Lot is 3.390 acres in size.
101-2 Seaverns Bridge Rd : 4 bedroom Colonial Style home with 2.5 baths and a first floor primary bedroom. Lot is 2238 Sqft. Construction to include a 2 car attached garage, front porch and rear deck. Property will feature a septic system and well and a shared common driveway. Lot is 2.110 acres in size.
101-1 Seaverns Bridge Rd: Details TBD. Lot size is 3.884 acres.










